Make a call: +86-18927201572
EN
English
Arabic
Dutch
French
German
Greek
Hebrew
Hindi
Italian
Japanese
Home
Product
About
Video
News
Contact
Get A Quote
Get A Quote
Main Menu
Home
Product
About
Video
News
Contact
---------- CHANGE LANGUAGES -------
English
Arabic
Dutch
French
German
Greek
Hebrew
Hindi
Italian
Japanese
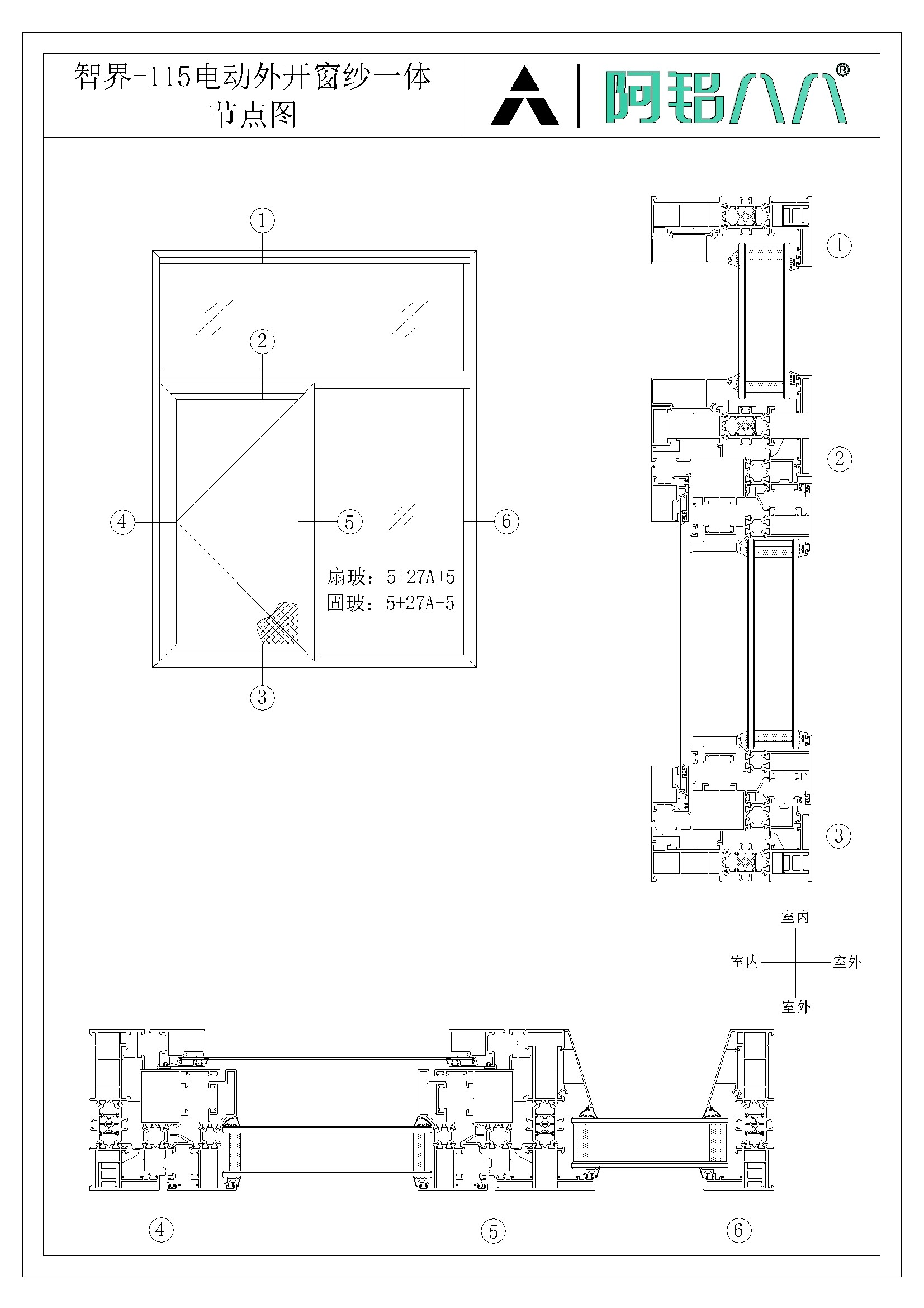
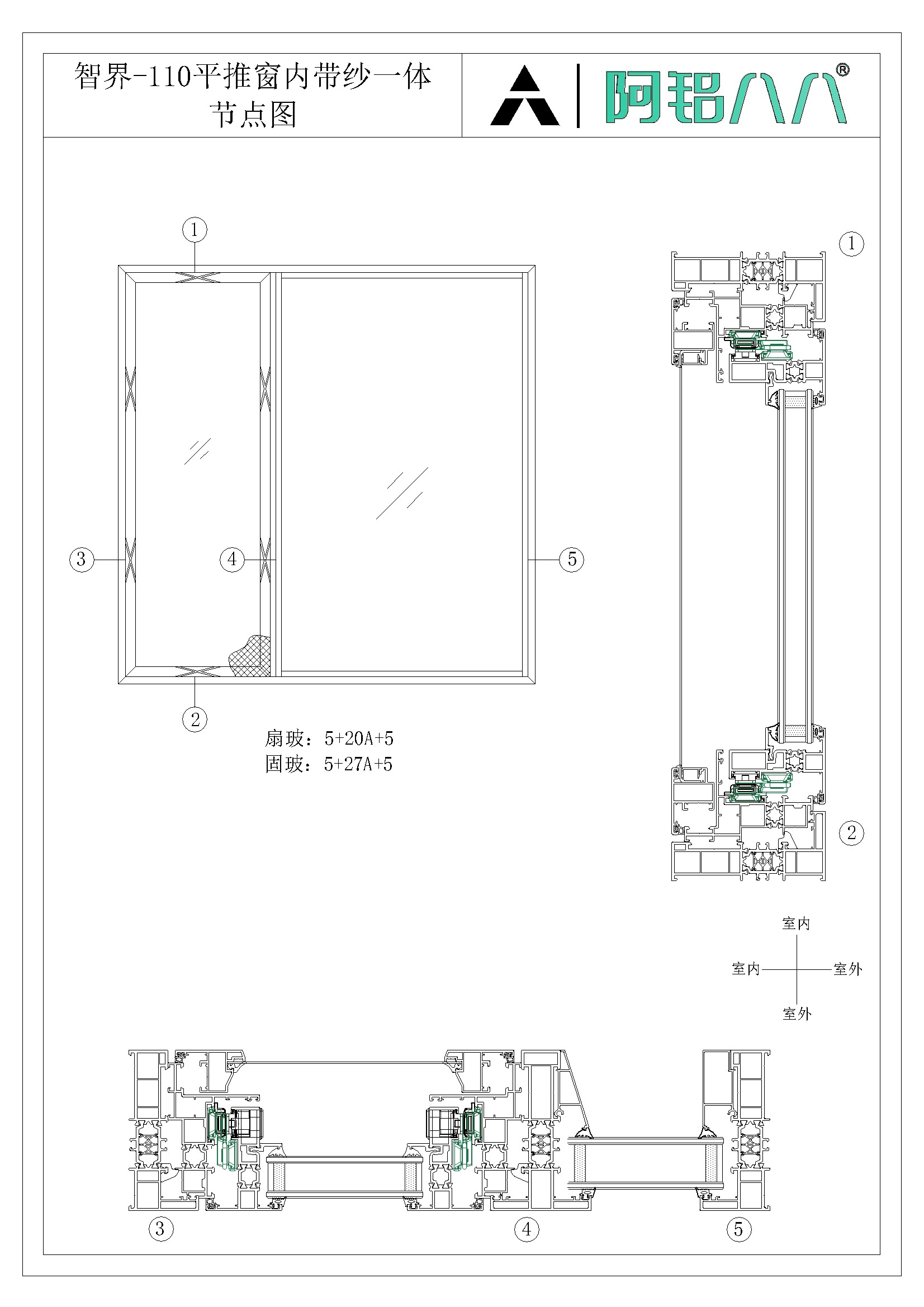
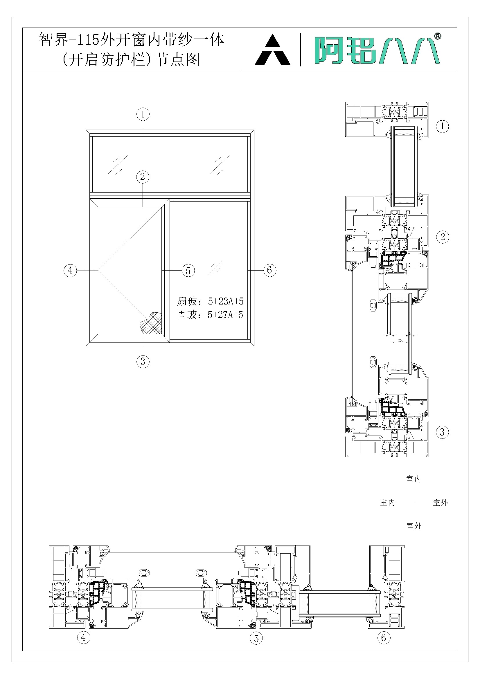
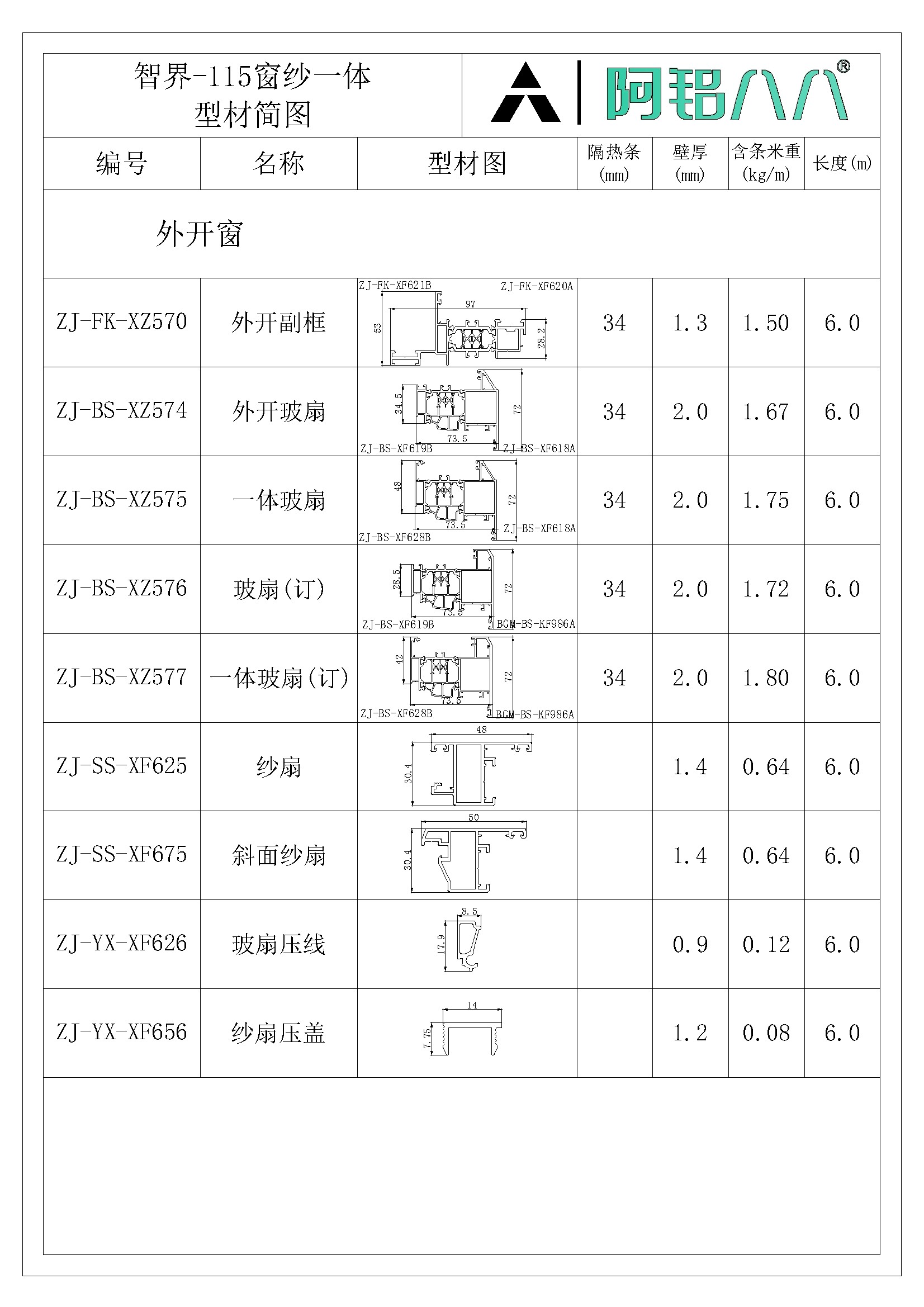
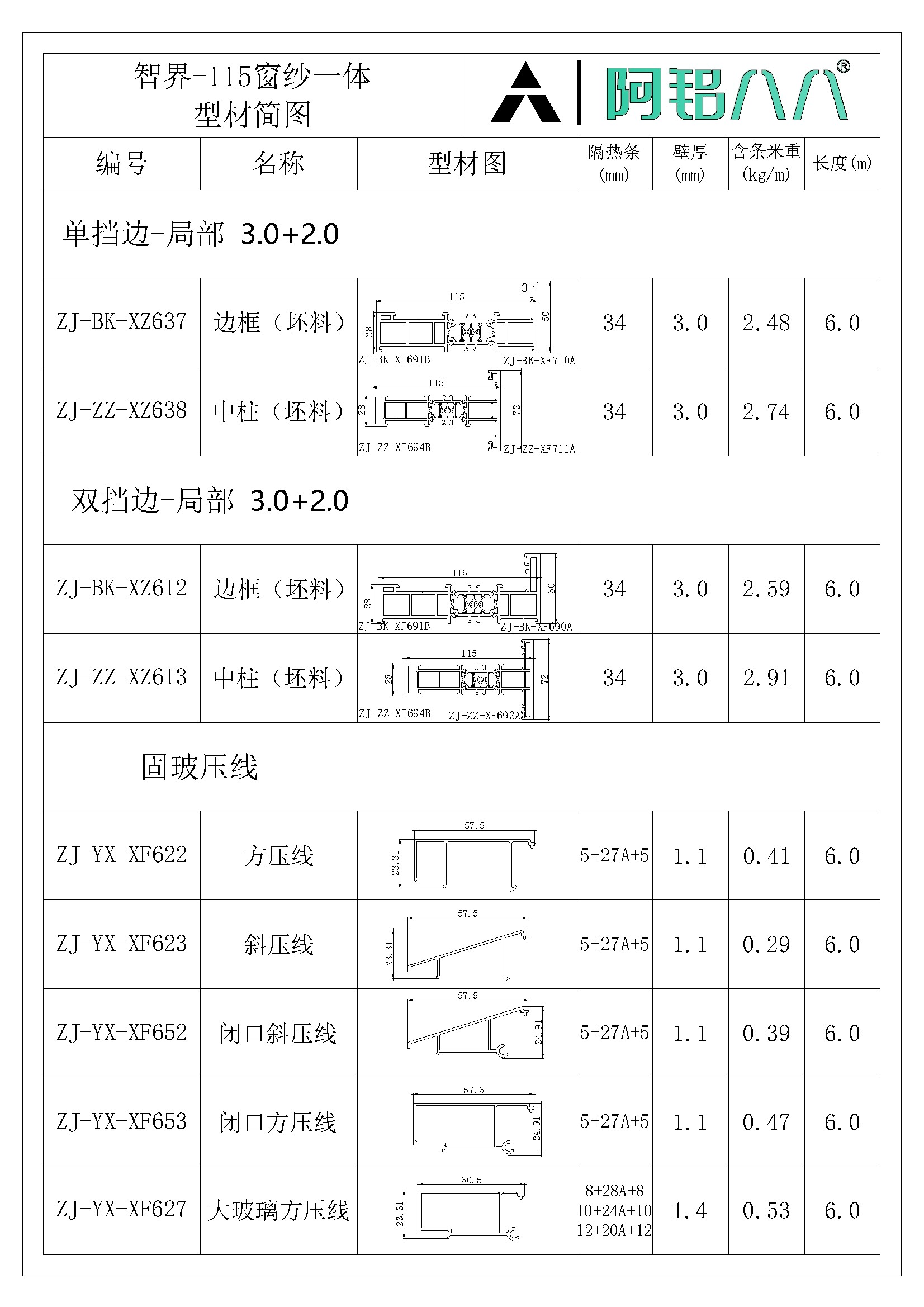
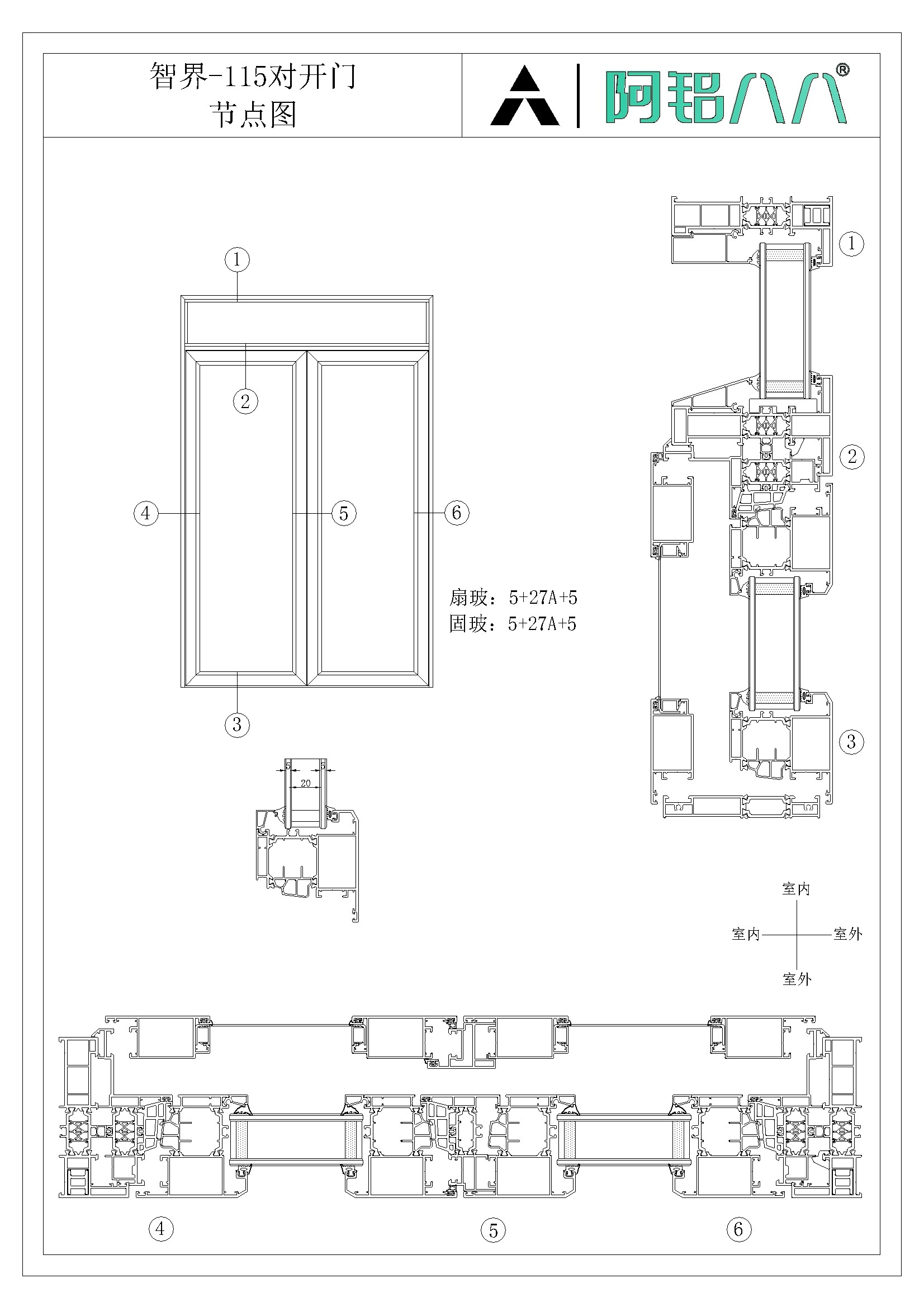
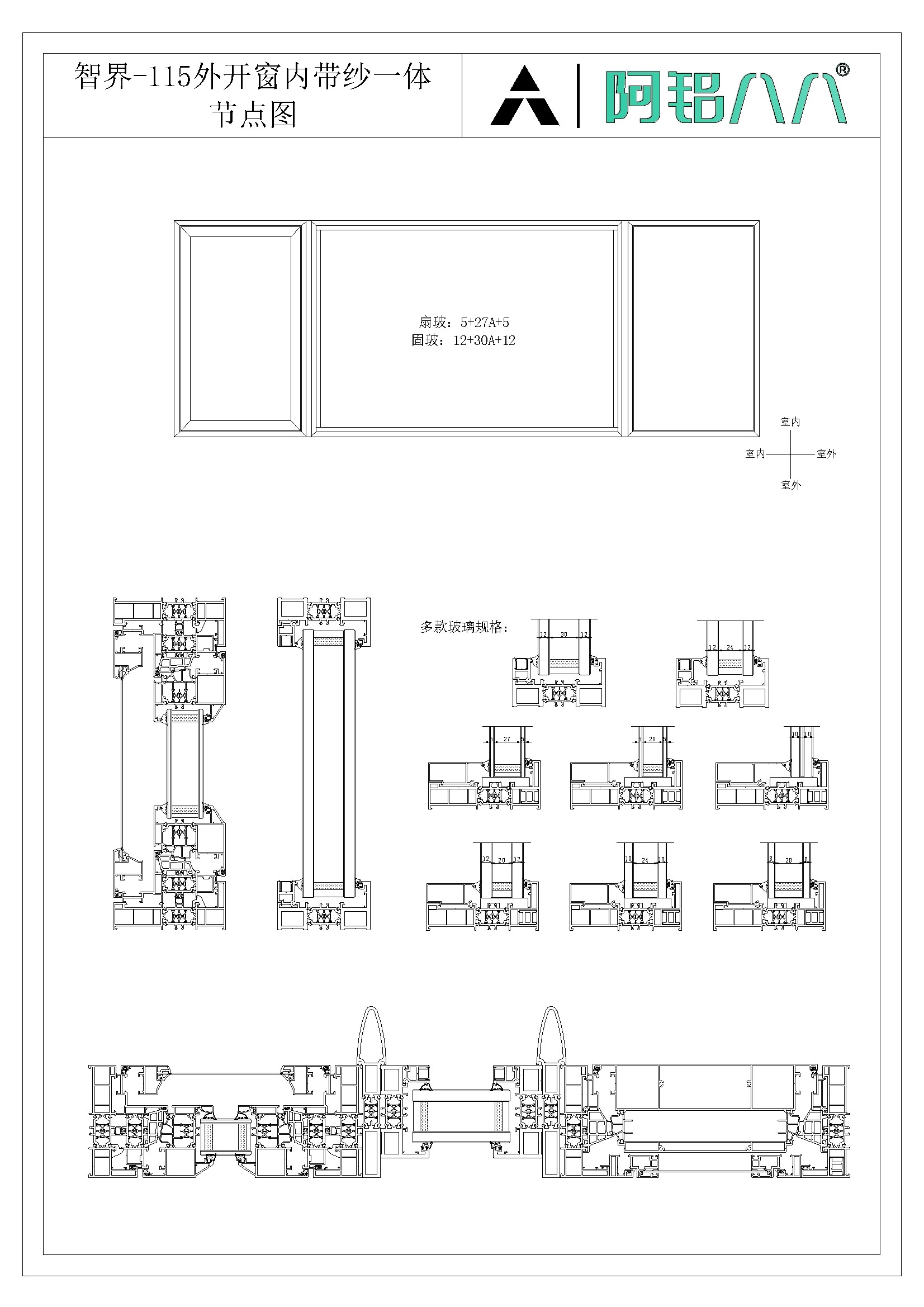
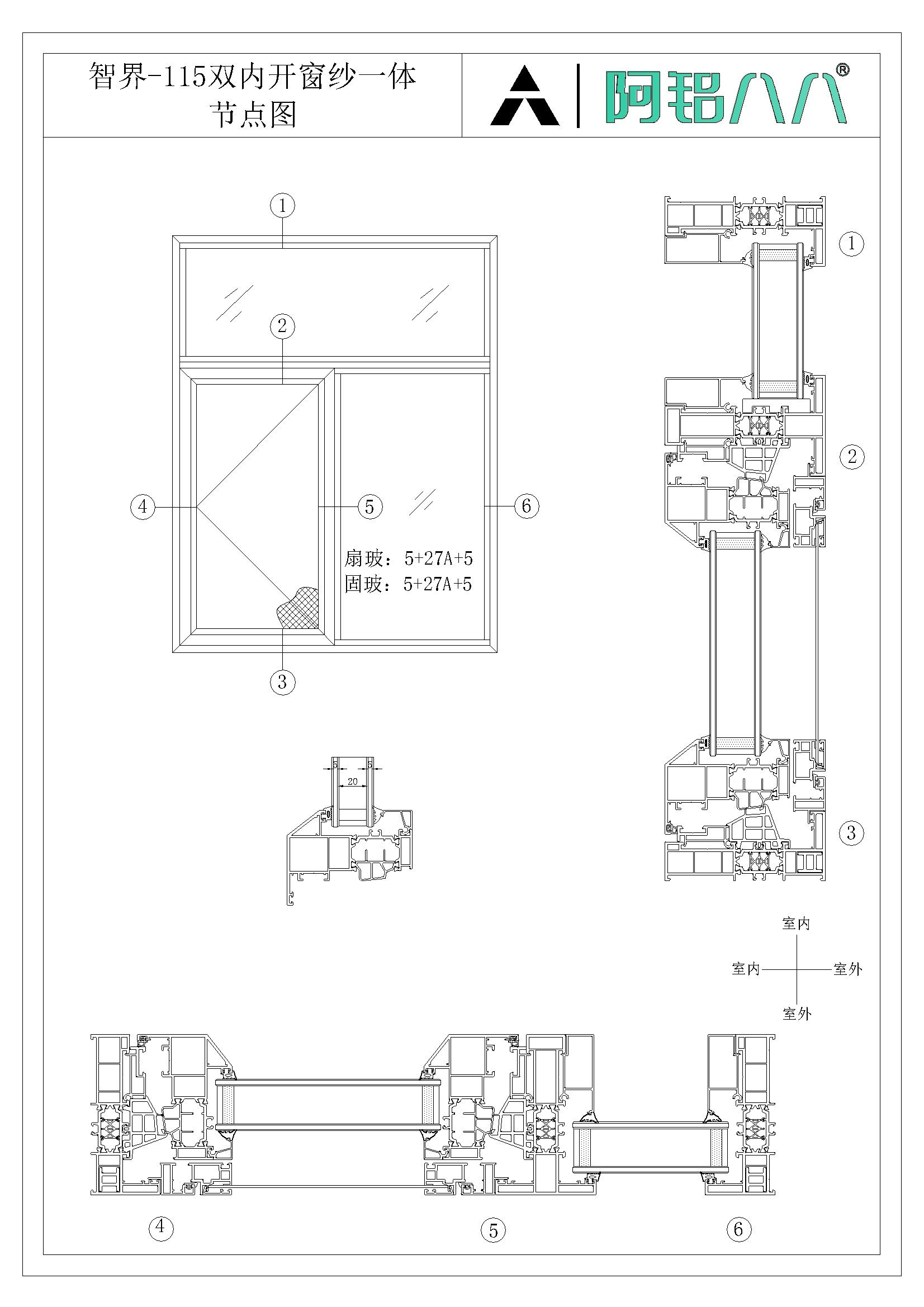
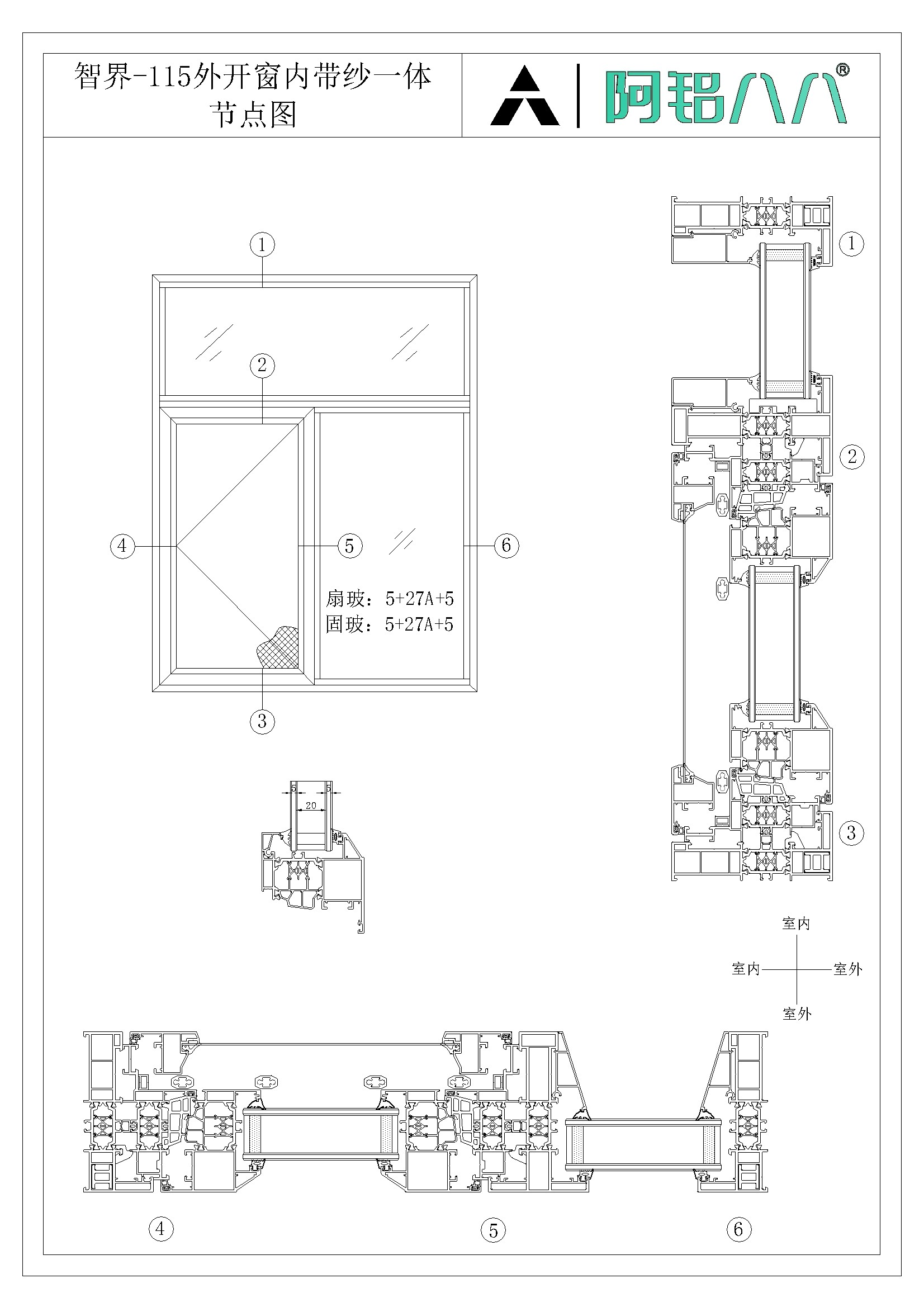
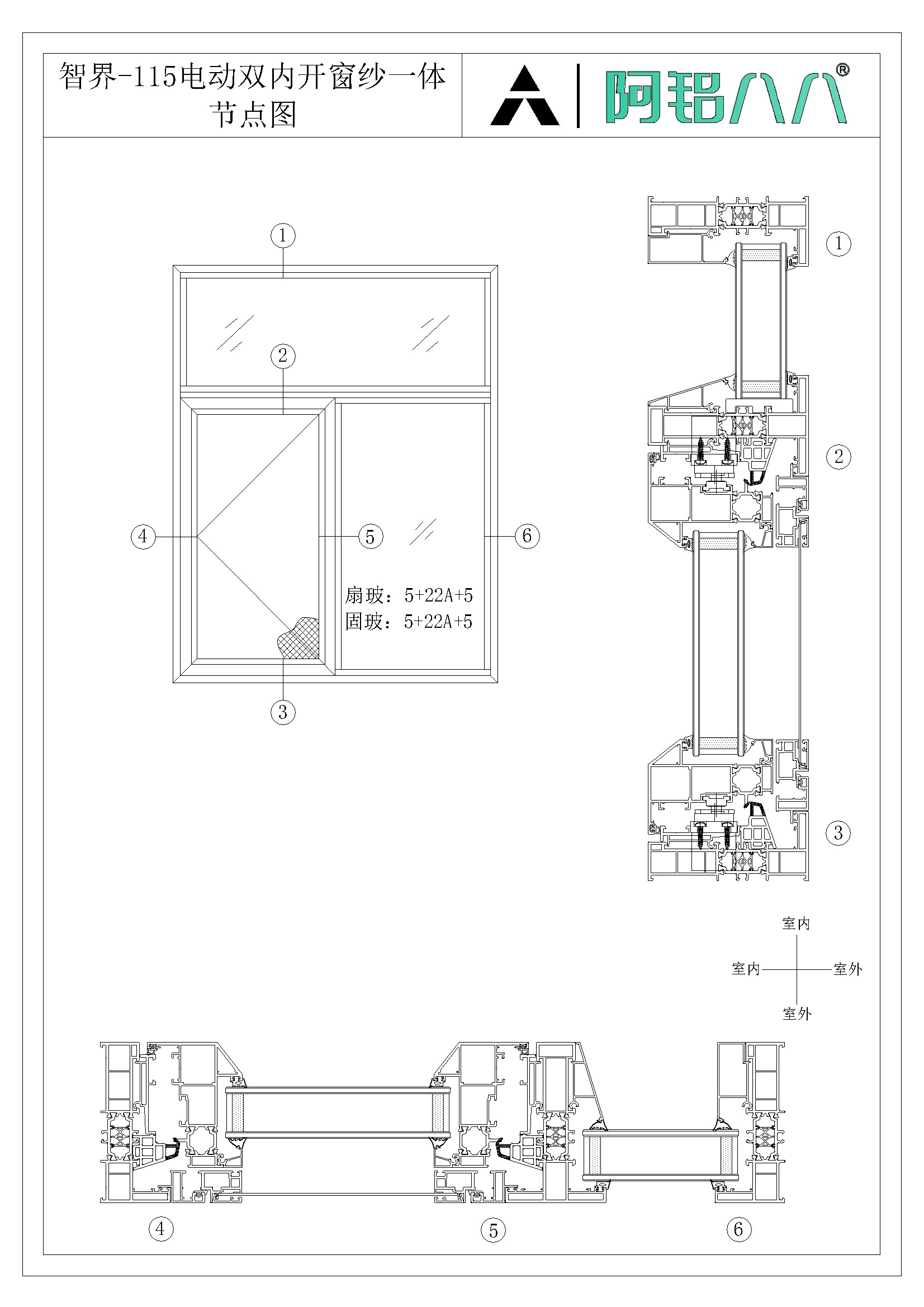
Zhi Jie 115 window screen integrated
related:Zhi Jie 115 window screen integrated